关于我们
合作案例
艺术家图库
联系我们
登录
/
注册
CN
EN
艺术家图库
>
建筑
> 103037
前一页
255 of 858
后一页
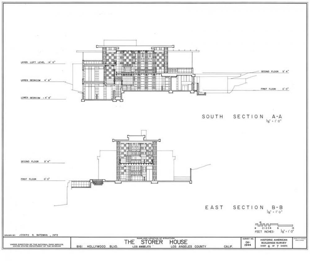
图片名称:103037
编号:FLW03227849
艺术家:Frank Lloyd Wright
联系我们
返回